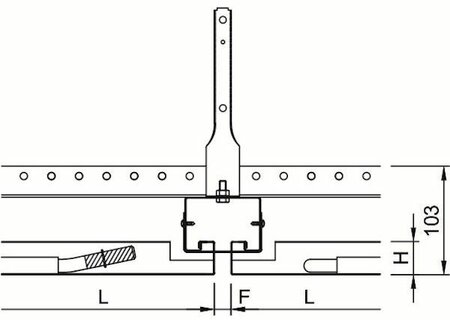
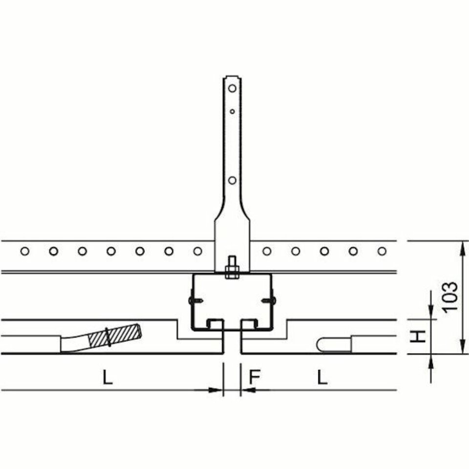
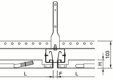
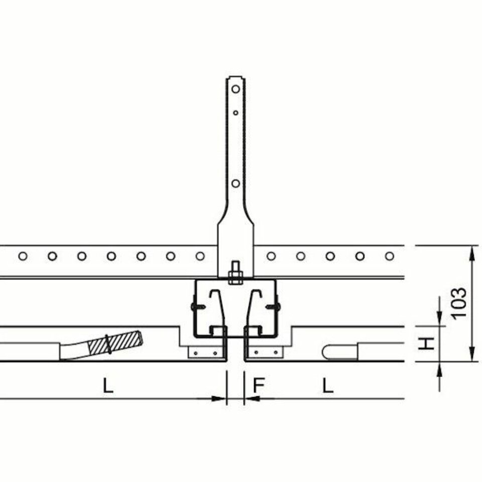
Eine homogene Deckenansicht mit betonter Fuge kennzeichnet die Einhängeheiz-/kühldecke Plafotherm® E 213. Durch Strahlung kühlt und heizt sie Ihre Räume effektiv und schafft dadurch ein angenehmes Raumklima. Die eingehängten Deckenplatten können individuell und variabel gestaltet werden: eine Vielzahl an Plattenformen und -größen ist realisierbar. Damit Sie für Wartungsarbeiten schnell und einfach in den Deckenhohlraum gelangen, sind die Deckenplatten werkzeuglos abnehmbar und auf Wunsch abklapp- und verschiebbar. Eine Kombination von thermisch aktiven und passiven Bereichen ist möglich.
Geschäfte, Freizeit und Kultur: Einkaufszentren, Verkaufsflächen, Banken, Kino und Multiplex-Kinos, Museen und Galerien, Sporthallen und Turnhallen, Versammlungsstätten
Arbeit: Aufenthaltsräume, Besprechungs-, Tagungs- und Konferenzräume, Bühnen- und Studioräume, Bürogebäude, Räume für Rundfunk- und Fernsehproduktion
Bildung: Bibliothek, Forschungsräume, Hochschulen und Universitäten, Schulen
Transport: Flughäfen, Bahnhöfe
Öffentliche Einrichtungen: Gerichte und Justizvollzugsanstalten, Rathäuser, Regierungs- und Verwaltungsgebäude
Gesundheit: Apotheken (Herstellung), Kliniken und Krankenhäuser
Hotels und Gastronomie: Hotels und Resorts
Industrie: Fabriken und Produktionsstätten
Verkehrsflächen: Eingangsbereiche

