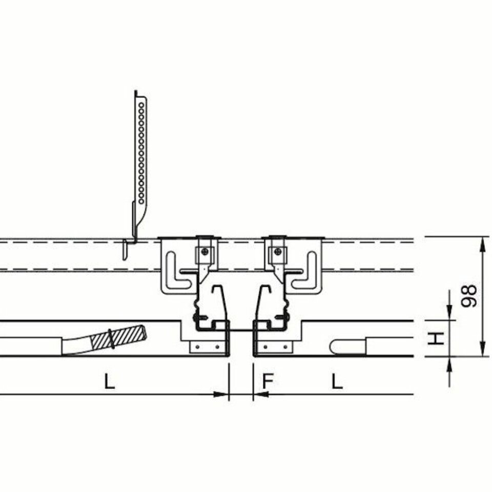
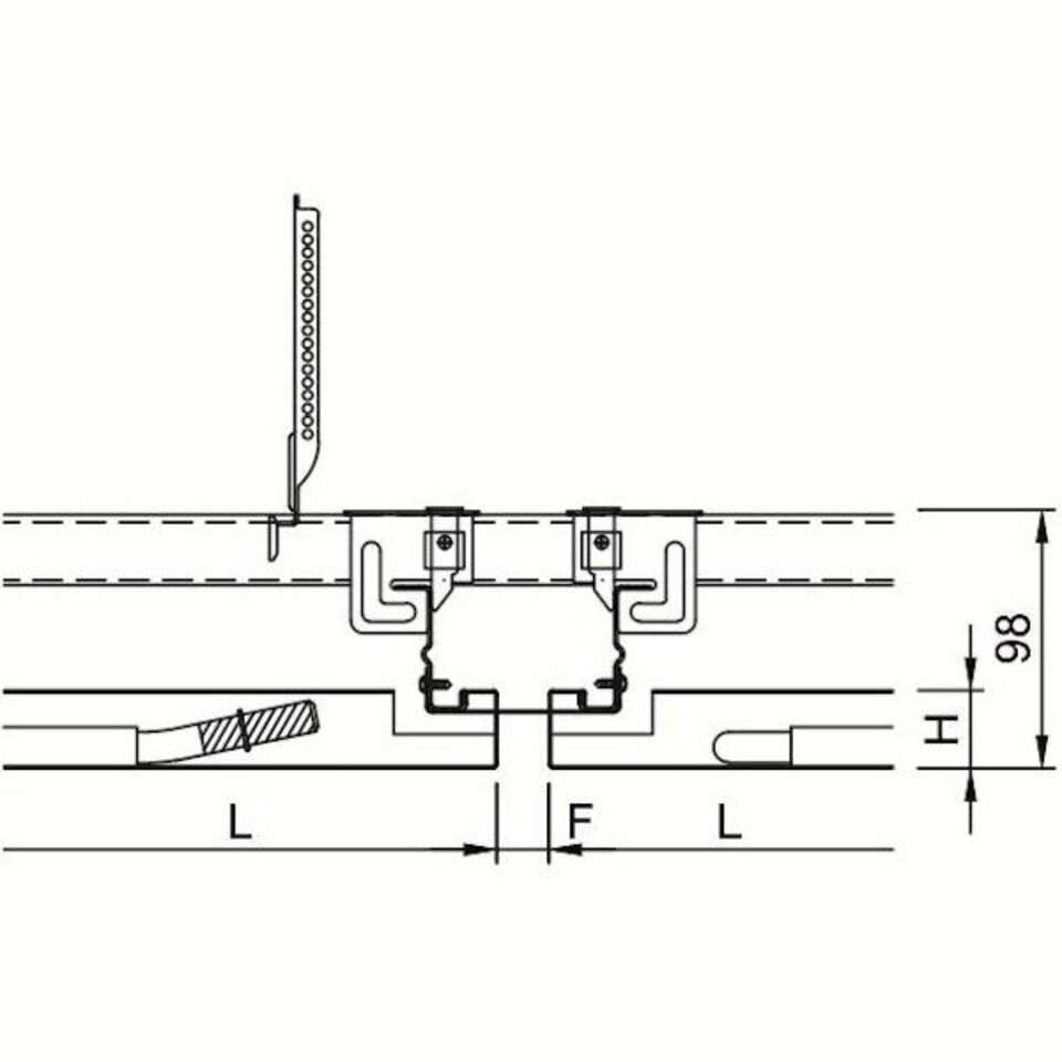
Die Einhängedecke mit verdeckter Unterkonstruktion und offener Fuge erreicht eine angenehme und behagliche Temperierung. Die offene Fuge zwischen den Deckenplatten hat nicht nur einen architektonischen Effekt, sondern kann auch zur Luftüberströmung sowie zur unabhängigen Installation von Leuchten oder anderen Einbauten genutzt werden. Die werkzeuglos bedienbaren Deckenplatten können in Bezug auf Form und Größe individuell gestaltet werden. Auf Wunsch lassen sich thermisch aktive und passive Bereiche kombinieren.
Arbeit: Aufenthaltsräume, Besprechungs-, Tagungs- und Konferenzräume, Bühnen- und Studioräume, Bürogebäude, Räume für Rundfunk- und Fernsehproduktion
Geschäfte, Freizeit und Kultur: Einkaufszentren, Verkaufsflächen, Banken, Kino und Multiplex-Kinos, Museen und Galerien, Versammlungsstätten
Bildung: Bibliothek, Forschungsräume, Hochschulen und Universitäten, Schulen
Transport: Flughäfen, Bahnhöfe
Öffentliche Einrichtungen: Gerichte und Justizvollzugsanstalten, Rathäuser, Regierungs- und Verwaltungsgebäude
Gesundheit: Apotheken (Herstellung), Kliniken und Krankenhäuser
Hotels und Gastronomie: Hotels und Resorts
Industrie: Fabriken und Produktionsstätten
Verkehrsflächen: Eingangsbereiche

