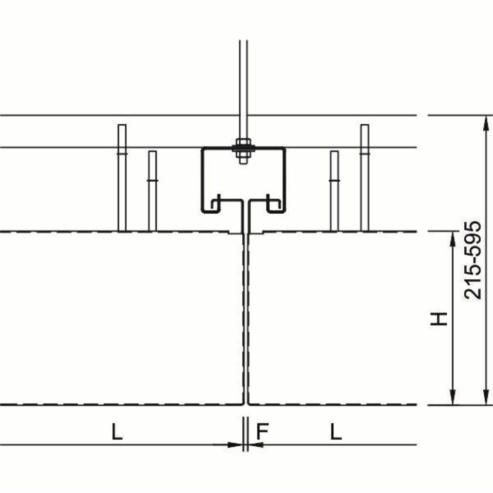
Diese lineare Lamellendecke ist besonders für Bereiche mit erhöhten Revisionsanforderungen geeignet. Durch die verschiebbaren Lamellen gelangen Sie komfortabel in den Deckenhohlraum. Die offene Bauweise vereint zudem hohe Kühlleistung und variable Gestaltungsmöglichkeiten. Durch frei wählbare Achsraster und Lamellenabmessungen schaffen Sie eine einzigartige Optik in Ihren wohl temperierten Räumen. Der Deckenhohlraum zwischen den Lamellen kann für Installationen genutzt werden. Die Metalllamellen sind einfach und schnell montiert – auch eine Kombination mit passiven Lamellen ist möglich.
Arbeit: Aufenthaltsräume, Besprechungs-, Tagungs- und Konferenzräume, Bühnen- und Studioräume, Bürogebäude, Räume für Rundfunk- und Fernsehproduktion, Versammlungsräume
Geschäfte, Freizeit und Kultur: Einkaufszentren, Verkaufsflächen, Banken, Kino und Multiplex-Kinos, Konzerthäuser, Theater und Opern, Museen und Galerien, Versammlungsstätten
Bildung: Bibliothek, Forschungsräume, Hochschulen und Universitäten, Schulen
Hotels und Gastronomie: Hotels und Resorts, Gastronomie
Transport: Flughäfen, Bahnhöfe
Öffentliche Einrichtungen: Gerichte und Justizvollzugsanstalten, Rathäuser, Regierungs- und Verwaltungsgebäude
Verkehrsflächen: Eingangsbereiche

