F90 Eingehängt-Abklappbar-Verschiebbar

LMD Metall-Brandschutzdecke nach DIN 4102-2

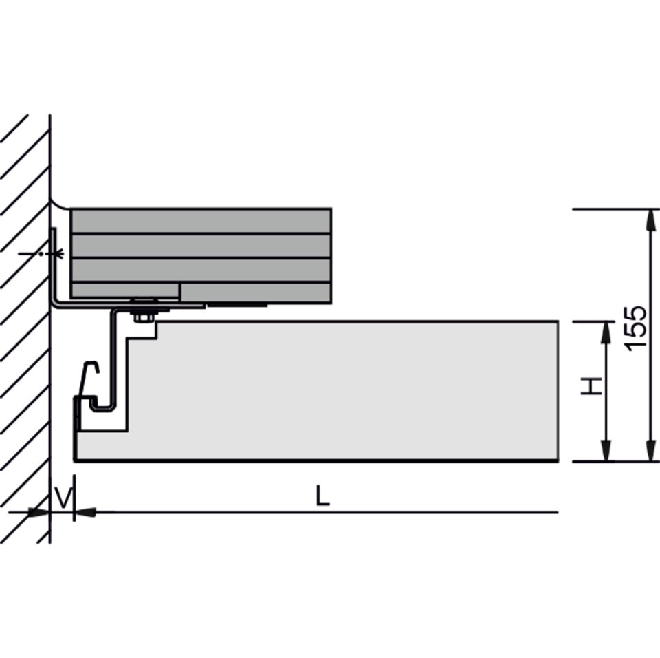
Die Deckenelemente dieser Brandschutzunterdecke sind beidseitig in Tragschienen eingehängt und können werkzeuglos abgeklappt und entlang der Flurlängsrichtung verschoben werden. Hierfür ist kein zusätzlicher Deckenhohlraum erforderlich. Diese Brandschutzunterdecke ermöglicht einen guten Toleranzausgleich an der Wand.

  • allgemeines bauaufsichtliches Prüfzeugnis Nr. P-SAC-02 /III-648
  • frei gespannte Konstruktion
  • guter Toleranzausgleich an der Wand durch verstellbaren Wandanschluss möglich
  • werkzeuglose Revisionsmöglichkeit der einzeln bedienbaren, abklappbaren und verschiebbaren Deckenelemente
  • abgeklappte Deckenelemente können für eine große Revisionsöffnung (ca. 2.500 x 600 mm) auseinandergeschoben werden
  • kein zusätzlicher Deckenhohlraum für die Revisionierung erforderlich
  • hygienisch und leicht zu reinigen
High
Downloads

Digital Service

Ausschreibungstexte und DIN/VOB Spezifikationen

NBS Spezifikationen

Produktinformationen

Deckenelemente

Technische Daten

Bauteilliste

Akustik

Brandschutz

Statik

Dauerhaftigkeit

Nachhaltigkeit

Zertifizierung

Projektlösungen

Wir sind immer für Sie da!

Zusatzausstattung / Zubehör - (8)

Beispiele für Einsatzgebiete

Gesundheit: Kliniken und Krankenhäuser, Labore & Forschung

Arbeit: Data Center / Rechenzentren, Technikräume

Geschäfte, Freizeit und Kultur: Versammlungsstätten

Verkehrsflächen: Notwendige Flure

Bildung: Forschungsräume

Industrie: Labore & Forschung

Hotels und Gastronomie: Hotels und Resorts

Öffentliche Einrichtungen

Zertifikat

ce-zeichen
TAIM

Referenzen

Unsere Projekte weltweit

Einmal um den ganzen Globus und wieder zurück in unsere Heimat Arnstorf: Mit unseren Bauprojekten sind wir nahezu überall vertreten! Egal, ob Neubau oder Sanierung, ob Innenausbau, Gebäudehülle oder Isoliertechnik – unsere Referenzen bestehen aus einer bunten Mischung voller neuer Herausforderungen und beeindruckender Ergebnisse.