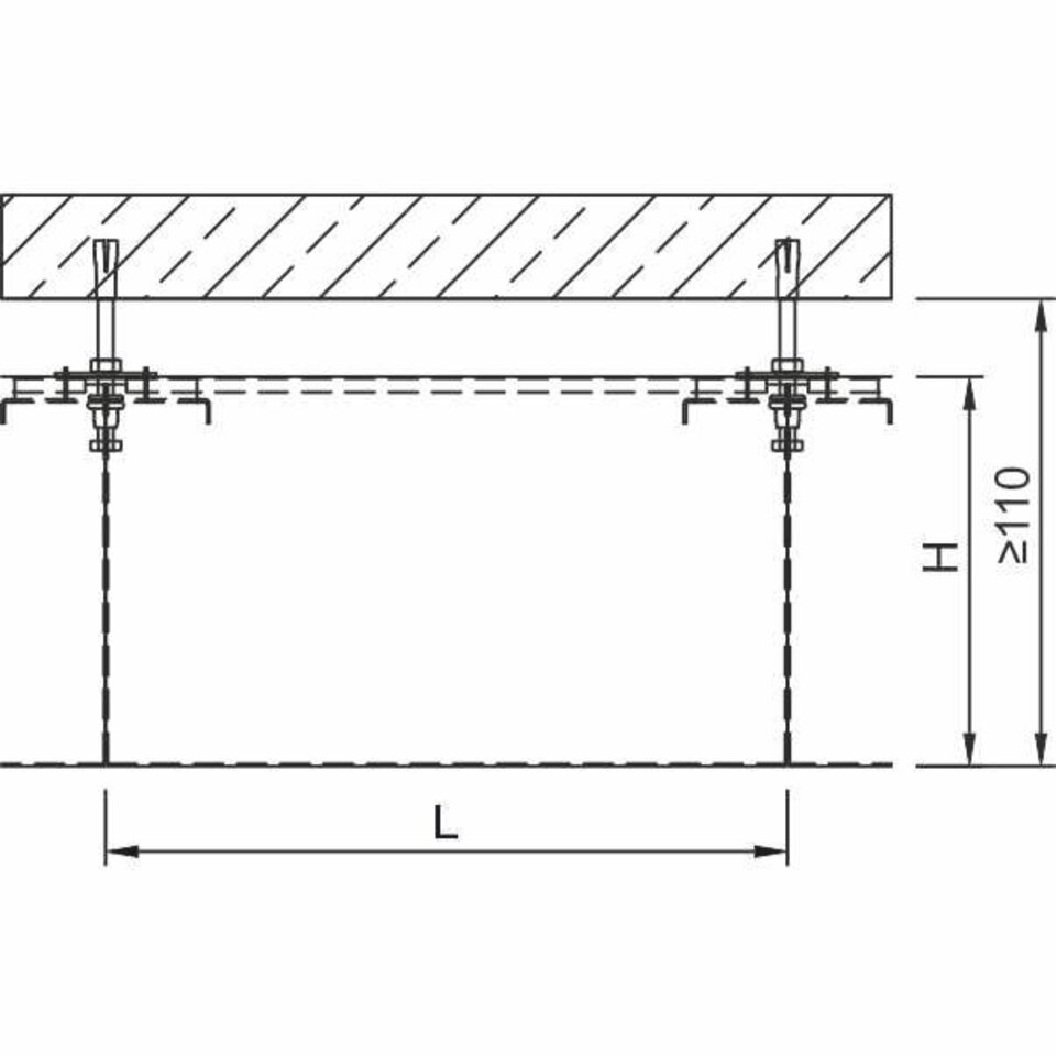
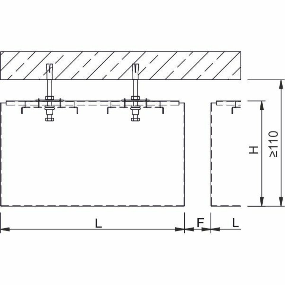
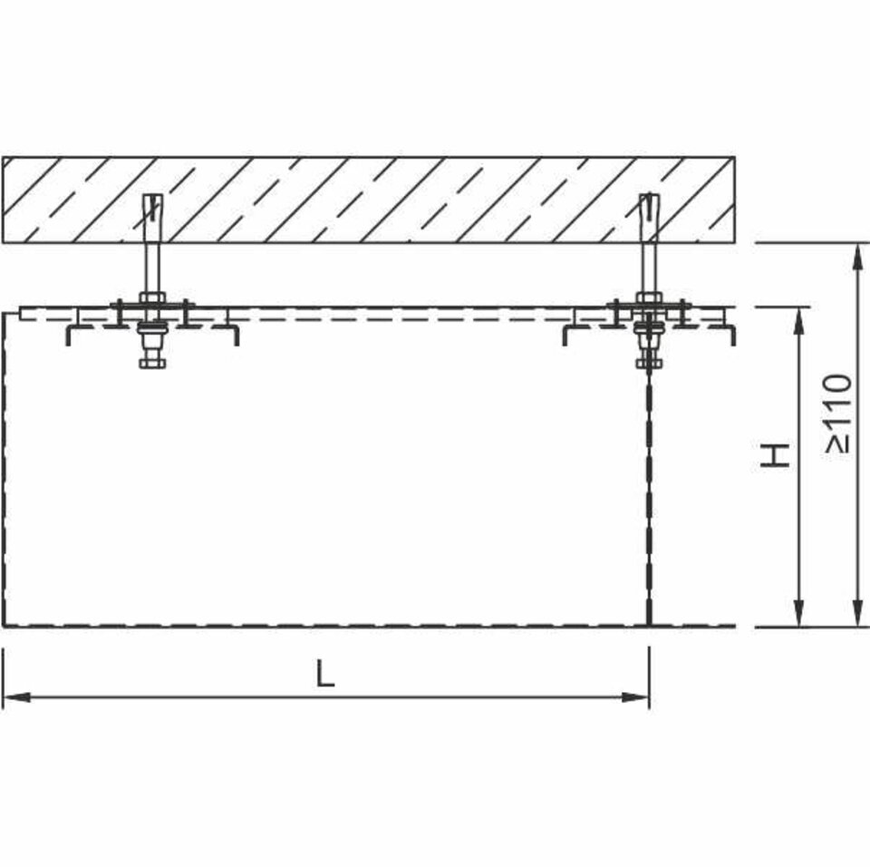
Diese Lamellendecke zeichnet sich durch eine sehr geringe Abhängehöhe aus, da die spezielle Abhängung ohne Unterkonstruktionsprofile direkt an der Rohdecke befestigt werden kann. So ist die Decke auch für niedrige Raumhöhen bestens geeignet. Frei wählbare Lamellenabstände und -abmessungen lassen Ihnen Freiraum für Gestaltungsmöglichkeiten. Der Deckenhohlraum zwischen den Lamellen ist frei einsehbar und kann für verschiedene Installationen genutzt werden..

Zirkularität: Alle Komponenten wiederverwendbar/aufbereitbar
Ökobilanz: EPD nach ISO 14025 und EN 15804
Cradle to Cradle Certified®: C2C Certified® Gold
Arbeit: Besprechungs-, Tagungs- und Konferenzräume, Bühnen- und Studioräume, Räume für Rundfunk- und Fernsehproduktion, Versammlungsräume, Aufenthaltsräume
Geschäfte, Freizeit und Kultur: Versammlungsstätten, Verkaufsflächen
Bildung: Forschungsräume
Verkehrsflächen: Eingangsbereiche









