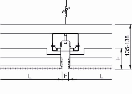
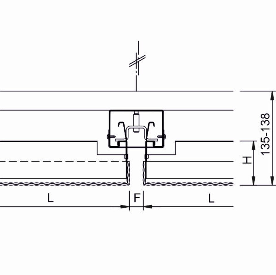
Die Streckmetalldecke ist für den Einsatz in überdachten Außenbereichen, Bahnhöfen, Tiefgaragen usw. konzipiert und für Winddruck- und Windsoglasten bis 133 kg/m² geeignet. Bei höheren Anforderungen können projektbezogene Lösungen umgesetzt werden. Die Decke bietet eine homogene Ansicht mit betonter Fuge in beide Richtungen und ermöglicht durch einzeln bedienbare, abklappbare und verschiebbare Deckenplatten eine einfache Revisionsmöglichkeit. Zudem ist sie in verschiedenen Maschenarten, -formen und -größen erhältlich.
Geschäfte, Freizeit und Kultur: Einkaufszentren, Museen und Galerien, Schwimmbäder, Versammlungsstätten, Banken, Kino und Multiplex-Kinos, Verkaufsflächen, Stadien und Arenen
Arbeit: Versammlungsräume, Aufenthaltsräume, Besprechungs-, Tagungs- und Konferenzräume, Bürogebäude
Transport: Bahnhöfe, Flughäfen
Öffentliche Einrichtungen: Gerichte und Justizvollzugsanstalten, Rathäuser, Regierungs- und Verwaltungsgebäude
Bildung: Bibliothek
Verkehrsflächen: Eingangsbereiche
Hotels und Gastronomie: Hotels und Resorts
