F30 Abklappbar-Verschiebbar

LMD Metall-Brandschutzdecke nach DIN 4102-2

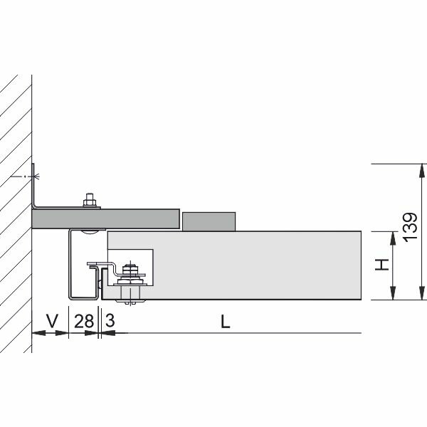
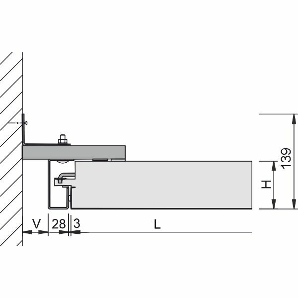
Die Deckenelemente, mit oder ohne Mineralwolle, sind in G-Profile gelagert und können mit einem Demontagewerkzeug einzeln abgeklappt und verschoben werden – ohne zusätzlich notwendigen Deckenhohlraum. Durch Zusammenschieben von bis zu drei Deckenelementen wird eine große Öffnung für Revisionsarbeiten erreicht.
Toleranzen an der Wand können dank des verstellbaren Wandanschlusses sehr gut ausgeglichen werden.
Stabile Lagerhaken bieten größtmögliche Sicherheit gegen unbeabsichtigtes Herausheben.
  • frei gespannte Konstruktion
  • sehr guter Toleranzausgleich an der Wand durch verstellbaren Wandanschluss möglich
  • Revisionsmöglichkeit der einzeln bedienbaren, abklappbaren und verschiebbaren Deckenelemente
  • abgeklappte Deckenelemente können für eine große Revisionsöffnung (ca. 2.500 x 2.000 mm) zusammengeschoben werden
  • kein zusätzlicher Deckenhohlraum für die Revisionierung erforderlich
  • hygienisch und leicht zu reinigen
Downloads

Digital Service

Ausschreibungstexte und DIN/VOB Spezifikationen

NBS Spezifikationen

Produktinformationen

Deckenelemente

Technische Daten

Bauteilliste

Akustik

Brandschutz

Dauerhaftigkeit

Nachhaltigkeit

Zertifizierung

Wir sind immer für Sie da!

Zusatzausstattung / Zubehör - (10)

Beispiele für Einsatzgebiete

Gesundheit: Labore & Forschung

Arbeit: Technikräume

Geschäfte, Freizeit und Kultur: Versammlungsstätten

Verkehrsflächen: Notwendige Flure

Bildung: Forschungsräume

Industrie: Labore & Forschung

Zertifikat

ce-zeichen
TAIM

Referenzen

Unsere Projekte weltweit

Einmal um den ganzen Globus und wieder zurück in unsere Heimat Arnstorf: Mit unseren Bauprojekten sind wir nahezu überall vertreten! Egal, ob Neubau oder Sanierung, ob Innenausbau, Gebäudehülle oder Isoliertechnik – unsere Referenzen bestehen aus einer bunten Mischung voller neuer Herausforderungen und beeindruckender Ergebnisse.