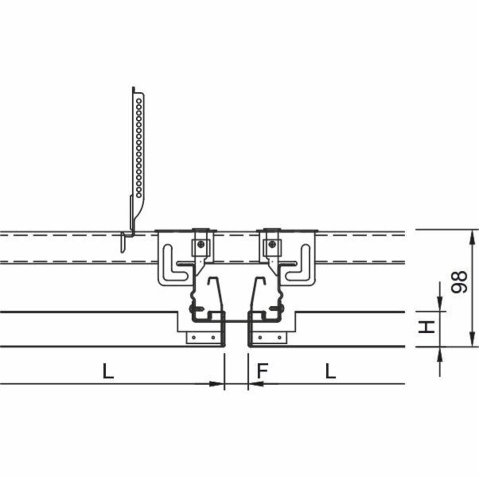
Eine verdeckte Unterkonstruktion und variable offene Fugen ab 10 mm kennzeichnen diese Einhängedecke. Die offenen Fugen können beispielsweise für unabhängige Installationen von Leuchten oder Einbauten genutzt werden. Individuelle Gestaltungsmöglichkeiten bietet Ihnen dieses System nicht nur durch den variablen Fugenabstand sondern auch durch flexibel realisierbare Plattenformen und Größen. Die eingehängten Deckenplatten können wahlweise abgenommen oder werkzeuglos abgeklappt werden und bieten Ihnen somit volle Revisionsfreundlichkeit.
Geschäfte, Freizeit und Kultur: Schwimmbäder, Banken, Versammlungsstätten, Einkaufszentren, Kino und Multiplex-Kinos, Museen und Galerien, Verkaufsflächen
Arbeit: Besprechungs-, Tagungs- und Konferenzräume, Bürogebäude, Aufenthaltsräume, Versammlungsräume
Bildung: Hochschulen und Universitäten, Schulen, Forschungsräume
Transport: Bahnhöfe, Flughäfen
Öffentliche Einrichtungen: Gerichte und Justizvollzugsanstalten, Rathäuser, Regierungs- und Verwaltungsgebäude
Gesundheit: Apotheken (Herstellung), Kliniken und Krankenhäuser
Hotels und Gastronomie: Hotels und Resorts
Industrie: Fabriken und Produktionsstätten
Verkehrsflächen: Eingangsbereiche

