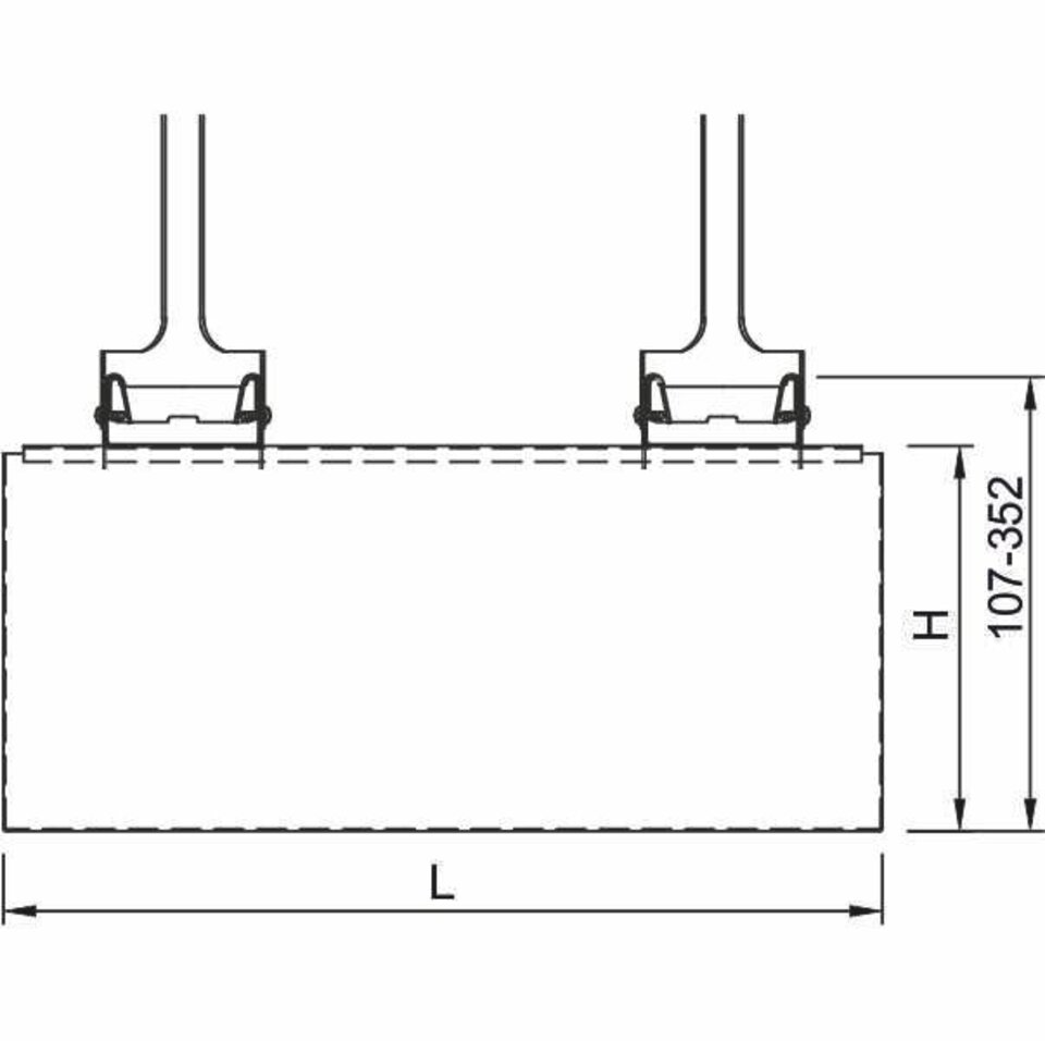
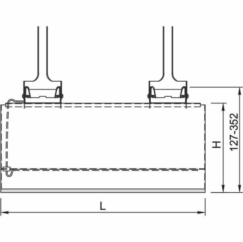
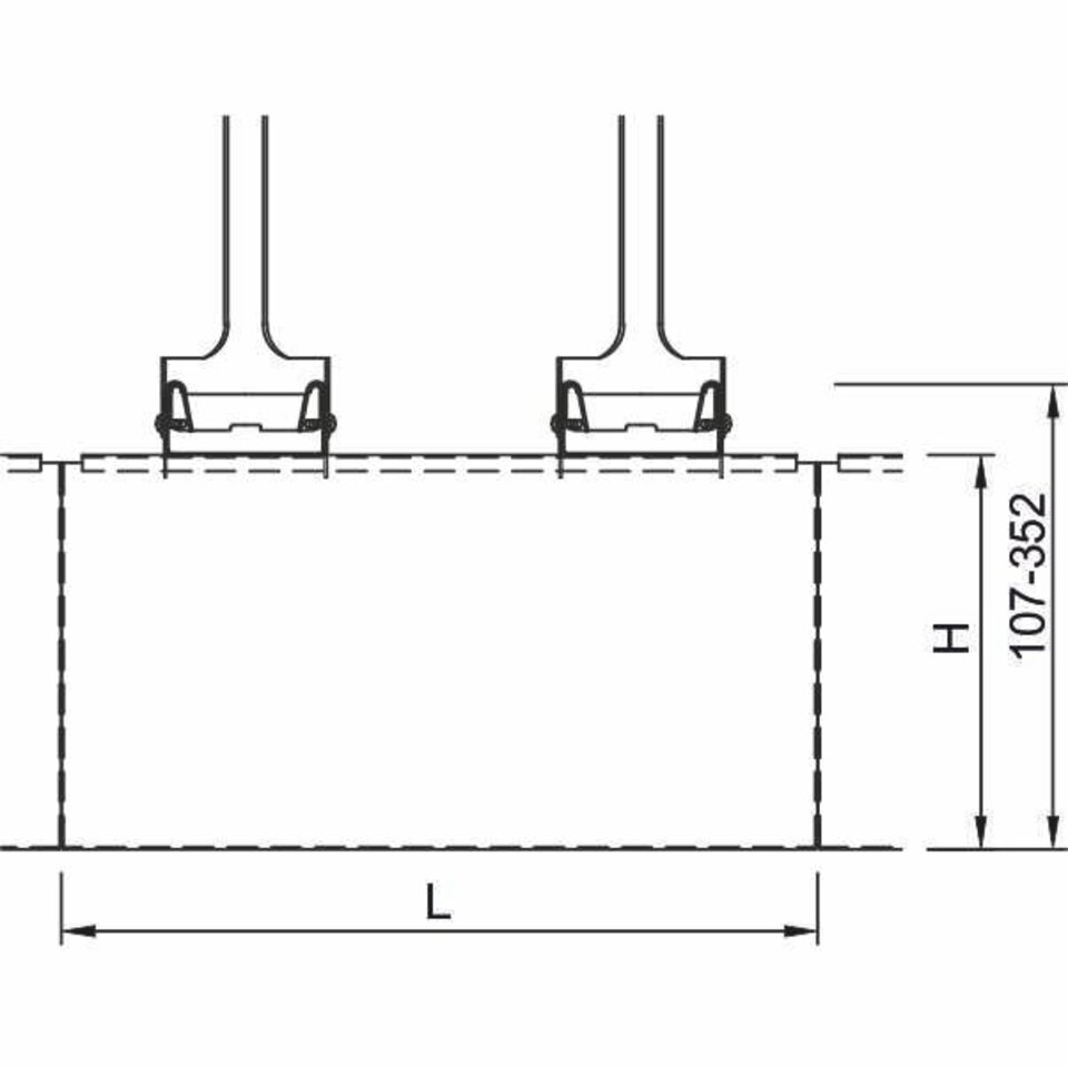
Die geradlinige Anordnung der einteiligen Metalllamellen bietet Ihnen vielseitige Verlegungsmöglichkeiten durch verschiedene Achsraster und Abmessungen der Lamellen. Der individuelle Lamellenabstand erlaubt eine einfache Integration erforderlicher Einbauten im frei einsehbaren Deckenhohlraum zwischen den Lamellen. Die Grundkonstruktion aus CD-Profilrost gewährleistet eine einfache und schnelle Montage.
Geschäfte, Freizeit und Kultur: Einkaufszentren, Museen und Galerien, Stadien und Arenen, Versammlungsstätten, Banken, Kino und Multiplex-Kinos, Konzerthäuser, Theater und Opern, Verkaufsflächen
Arbeit: Besprechungs-, Tagungs- und Konferenzräume, Bühnen- und Studioräume, Räume für Rundfunk- und Fernsehproduktion, Versammlungsräume, Aufenthaltsräume, Bürogebäude
Transport: Bahnhöfe, Flughäfen
Bildung: Forschungsräume, Bibliothek
Öffentliche Einrichtungen: Gerichte und Justizvollzugsanstalten, Rathäuser, Regierungs- und Verwaltungsgebäude
Hotels und Gastronomie: Hotels und Resorts, Gastronomie
Verkehrsflächen: Eingangsbereiche

