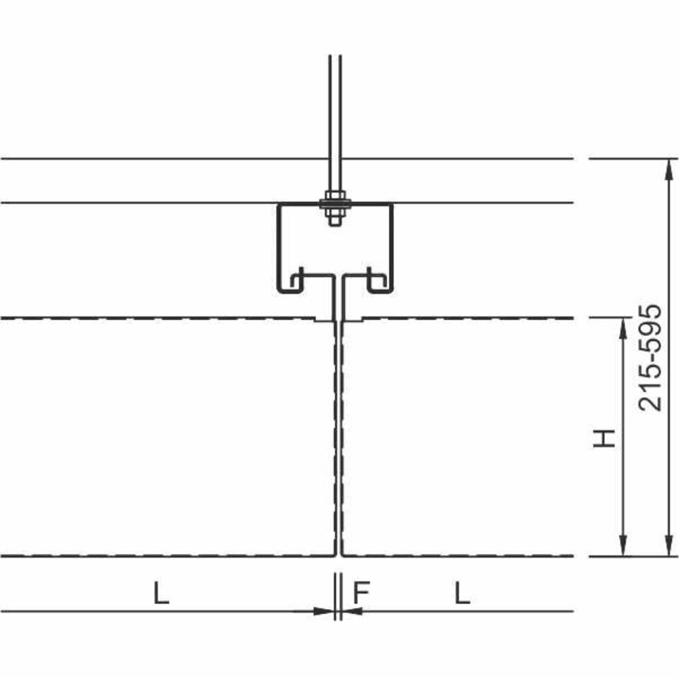
Diese hochwertige Lamellendecke ist besonders für Bereiche mit erhöhten Revisionsanforderungen geeignet. Durch die verschiebbaren zweiteiligen Lamellen gelangen Sie komfortabel in den Deckenhohlraum. Die linearen Lamellen können schnell und einfach in verschiedenen Abmessungen und Achsrastern montiert werden. Freiräume zwischen den Lamellen können beispielsweise für Leuchten, Sprinkler oder zur Abhängung von Schildern genutzt werden.
Geschäfte, Freizeit und Kultur: Einkaufszentren, Museen und Galerien, Stadien und Arenen, Versammlungsstätten, Banken, Kino und Multiplex-Kinos, Konzerthäuser, Theater und Opern, Verkaufsflächen
Arbeit: Besprechungs-, Tagungs- und Konferenzräume, Bühnen- und Studioräume, Räume für Rundfunk- und Fernsehproduktion, Versammlungsräume, Aufenthaltsräume, Bürogebäude
Transport: Flughäfen, Bahnhöfe
Bildung: Bibliothek, Forschungsräume
Öffentliche Einrichtungen: Gerichte und Justizvollzugsanstalten, Rathäuser, Regierungs- und Verwaltungsgebäude
Hotels und Gastronomie: Hotels und Resorts, Gastronomie
Verkehrsflächen: Eingangsbereiche

